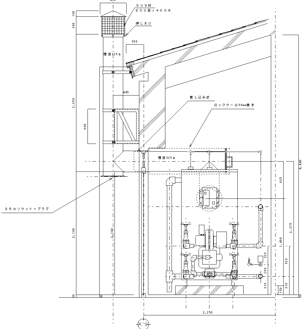
給湯ボイラ室断面図  S=1/20
ダウンロード