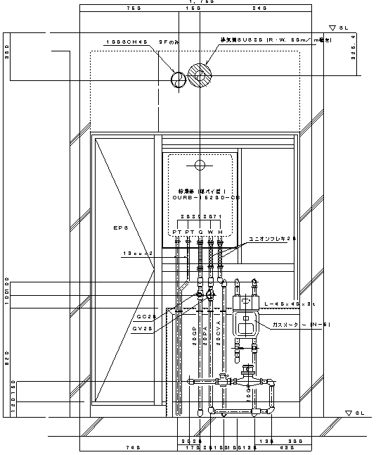
パイプシャフト立面詳細図 S=1/20
ダウンロード