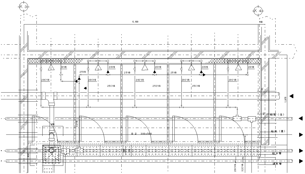
シャワー平面詳細図  S=1/20
ダウンロード